Whatsapp »
+507 6870-8679
Propiedades
Venta
Apartamentos en venta
Casas en venta
Oficinas en venta
Locales en venta
Galeras en venta
Lotes en venta
Fincas en venta
Alquiler
Apartamentos en alquiler
Casas en alquiler
Oficinas en alquiler
Locales en alquiler
Galeras en alquiler
Lotes en alquiler
Fincas en alquiler
Proyectos
Contáctanos
Herramientas
Calculadora de Hipoteca
Calculadora de Impuesto de Venta de una Propiedad
+ PUBLICAR
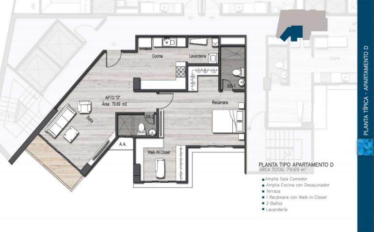
Apartamento en venta parque lefevre ifr 16-3046
Venta de apartamentos en Parque lefevre
Contactar a InmoPanama
¡Respuesta en minutos!
Anuncio Vencido.
Encuentre el apartamento perfecto para usted.
Deje en nuestras manos la búsqueda de su apartamento.
Hacer pregunta
Solicitar búsqueda
¡Respuesta en minutos!
Hola, me gustaría realizar con ustedes una búsqueda de apartamentos.
Consultas por Whatsapp las 24hs:
+507 6870-8679
Ver fotos »
¿Quieres ver propiedades similares a esta?
Tenemos propiedades con las mismas caracteristicas.
Quiero recibirlas
Precio:
Consultar
Habitaciones:
1
Baños:
2
Tamaño:
79m²
¡Aprovecha nuestros descuentos especiales!
Compra ahora y financia facilmente
Pago inicial:
$ *.***
Letra quincenal:
$ ***
Calcular mi hipoteca
Apartamento en venta parque lefevre ifr 16-3046
Proyecto localizado en uno de los puntos mas altos de la ciudad y lindero con el parque omar al cual se solicitara acceso. exclusiva torre de apartamentos de 24 pisos, desde 79,37 m² hasta 110 m², r
Ubicacion:
Parque lefevre
Apartamentos
»
Panamá
»
Provincia de Panamá
»
Ciudad de Panamá
»
Parque lefevre
Propiedades en Parque lefevre
»
Apartamentos en Parque lefevre
›
‹
$145,000
78.3 m²
2
2
Apartamento en venta parque lefevre
Apartamento en venta parque lefevre el apartamento se encuentra en la ciudad de panamá, en el co...
Parque lefevre
›
‹
$148,320
70 m²
2
2
Venta de apartamento ph coral towers, parque lefevre
El ph coral tower es un edificio residencial ubicado en el área de san francisco, ciudad de panamá...
Parque lefevre
Coral towers
›
‹
$165,000
82 m²
2
3
Venta de apartamento en ph coral towers, parque lefevre
Venta de apartamento en ph coral tower, este espacioso apartamento de 3 recámaras y 2 baños ofrece...
Parque lefevre
Coral towers
›
‹
$112,896
85.25 m²
2
3
Venta de apartamento en parque lefevre, panamá
Venta de apartamento - parque lefevreprecio de venta: $112,896.00área cerrada: 85.25 m²apartamento...
Parque lefevre
›
‹
$130,000
83.66 m²
2
3
Apartamento en venta en ph parque de versalles, torre fontaine bleu, parque lefevre
¡gran oportunidad de adquirir tu nuevo hogar en parque lefevre! apartamento en venta en ph parqu...
Parque lefevre
›
‹
$124,200
70.83 m²
2
2
Apartamento en venta en parque lefevre, panamá
Este apartamento en venta en parque lefevre tiene una distribución bien aprovechada y un precio com...
Parque lefevre
›
‹
$146,550
55 m²
2
2
Venta de apartamento en ph panamá viejo residences, parque lefevre
Hogares diseñados con inteligencia y confort ubicado en el prestigioso ph panamá viejo residences,...
Parque lefevre
›
‹
$166,586
58.88 m²
2
2
Venta de apartamentos en panamá viejo residences, panamá
Panamá viejo residences es un exclusivo proyecto residencial cerca del histórico panamá viejo, of...
Parque lefevre
›
‹
$126,000
80.38 m²
2
2
Venta de apartamento reposeído en parque lefevre, panamá
Te presentamos una excelente oportunidad para adquirir un hermoso apartamento reposeído en la tranq...
Parque lefevre
¿Quieres ver propiedades similares a esta?
Tenemos propiedades con las mismas caracteristicas.
Quiero recibirlas
Bienes raices Parque lefevre
Apartamentos en Parque lefevre
Enviar propiedades
Actualmente encontramos
8
propiedades.
Escribe el Whatsapp donde quieres recibirlas: